Przejdź do treści

U19L 100,3m2

Nasz profil > KATEGORIE > DOMY PARTEROWE Z PODDASZEM

UWAGA: PROJEKT OBECNIE NIEDOSTĘPNY.

KOLEKCJE PROJEKTÓW:

Powierzchnia u¿ytkowa

100,3m2

Powierzchnia zabudowy

69,0m2

Pow. zabud. z gara¿em

93m2

Kubatura

360m3

WysokoϾ

9,0m

K¹t nachylenia dachu

45

Gara¿ (18,6m2 dodatkowo)

tak lub nie

U19
cena: 1999zł
( WERSJA LUSTRZANA)                                                    

                   Niewielki i niedrogi
w budowie dom, idealny dla 4-osobowej rodziny.

Nieduży i prosty - jednak zupełnie niespotykane - półokrągłe wejście czyni go jedynym w swoim rodzaju i  powoduje, że przyciąga uwagę
.

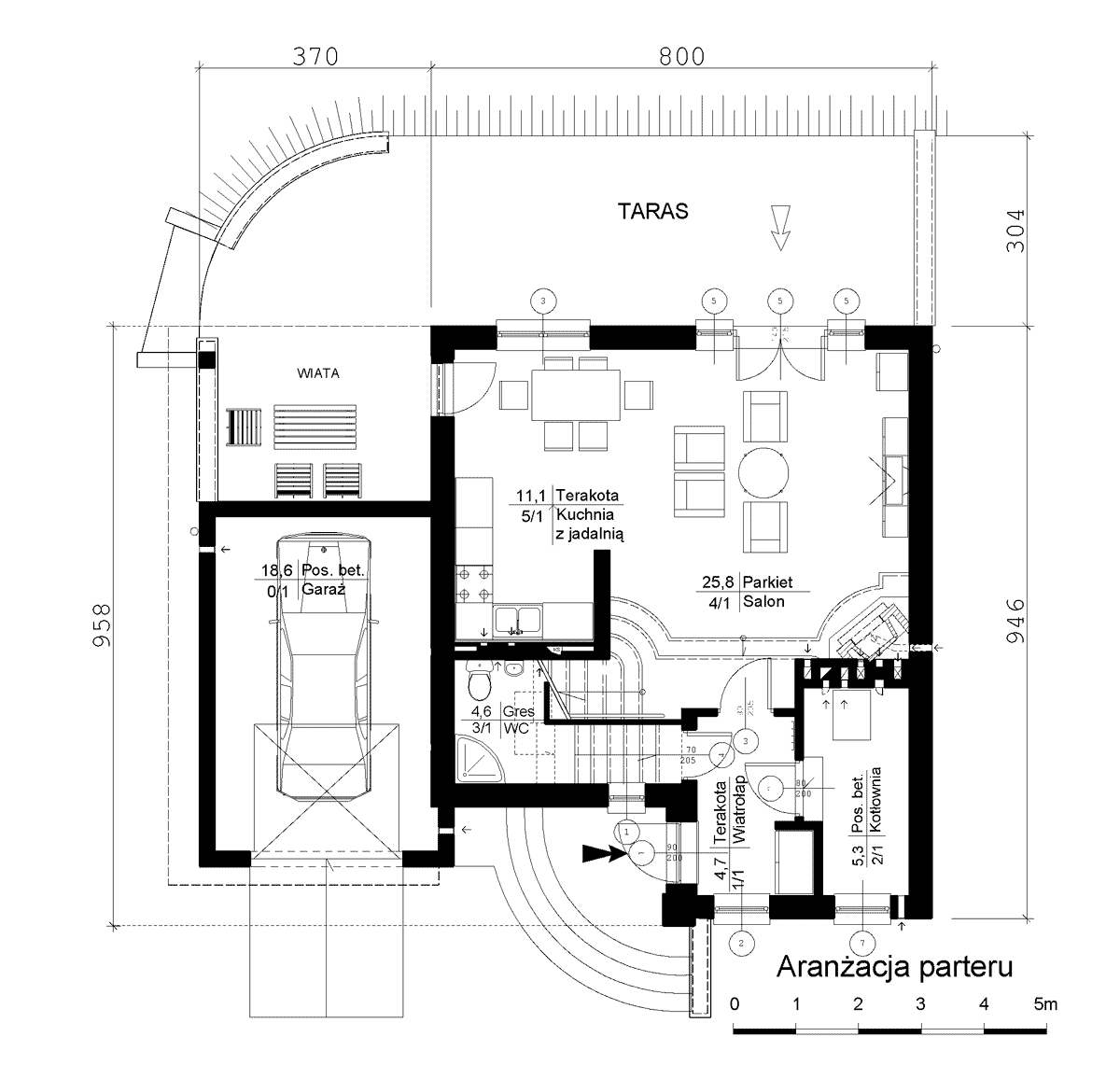
Parter z użytkowym poddaszem, z garażem lub bez - w zależności od funduszy. Garaż nie jest konstrukcyjnie zależny od reszty budynku. Można go zlikwidować (w ramach adaptacji) lub wybudować w drugim etapie.

Przestronny, wysoki prawie na 3m  salon
z jadalnią i otwartą kuchnią na dole.

                  Bezpośrednio z jadalni
(blisko kuchni), zaprojektowano wyjście na zadaszony taras - wiatę, co jest ogromną zaletą - z praktycznego punktu widzenia:  np. mamy ochotę na śniadanie na powietrzu? - wystarczy 1 krok i jesteśmy na tarasie. Nawet w deszczowy  (ale ciepły :-)  letni wieczór grill na tarasie - nie wymaga długich przygotowań. Do kuchni mamy przecież 1 krok.

Na poddaszu trzy sypialnie, w których wysoka ścianka kolankowa
(126cm, co za tym idzie - niewielkie "skosy") pozwala na maksymalne wykorzystanie powierzchni. Faktyczna powierzchnia użytkowa jest większa, niż obliczana normatywnie.

Dlaczego ten dom jest tani:

- Mała powierzchnia zabudowy (~90m2): mało fundamentów, mało stropu, mało dachu;
- Prostota konstrukcji dachu (lekka blachodachówka, proste połacie - a więc niewielka ilość odpadów)
- Jeden krótki  pion wodno-kanalizacyjny obsługuje CAŁY dom;
- Projekt zawiera rozwiązanie kominka z grawitacyjnym systemem Dystrybucji Gorącego Powietrza na poddasze. Pozwala to na ogrzanie domu kominkiem - bez  konieczności  budowy centralnego ogrzewania w pierwszych latach zamieszkiwania. Daje to kolejne oszczędności na budowie (brak konieczności zakupu kotła C.O.) i czyni go jeszcze tańszym i bardziej dostępnym.
- Cały komin kuchenno - łazienkowy można zastąpić tanimi kształtkami PCV !
- Można go wybudować dwuetapowo.

Skromna, a zarazem nietypowa architektura budynku sprawia, że chce się tam zamieszkać...


Cena projektu: 1499zł


Wróć do spisu treści