Przejdź do treści

U23L 168,7m2

Nasz profil > KATEGORIE > DOMY PARTEROWE Z PODDASZEM
KOLEKCJE PROJEKTÓW:

U23
wersja  lustrzana
(tu zobacz wersję podstawową)



         Elegancki i nowoczesny
dom dla 4-5 osobowej rodziny.
Parter z użytkowym poddaszem, z garażem 1-stanowiskowym
w bryle budynku. Dostępna jest również wersja większa "U22" - z garażem na dwa samochody i kuchnią po przeciwnej stronie.

Jego atutów jest naprawdę wiele
,
a to tylko niektóre z nich:

- duży,
solidnie zadaszony taras, dostępny z najważniejszych pomieszczeń w domu: z kuchni, z jadalni i z salonu - praktycznie!
- taras typu "weranda"-(rzadkość w projektach gotowych), bez marnowania powierzchni pokoju dziennego, jak ma to miejsce w przypadku zadaszeń typu "podcień";
- dodatkowy pokój na dole
,
- garaż z dostępem z wiatrołapu;
- spiżarka przy kuchni
(w ciągu urządzeń!), doświetlona oknem.
- pralnia na dole
, dzięki czemu pralka nie zabiera już miejsca w łazience.
- dom dla przeciwników
klatki schodowej w salonie;
          
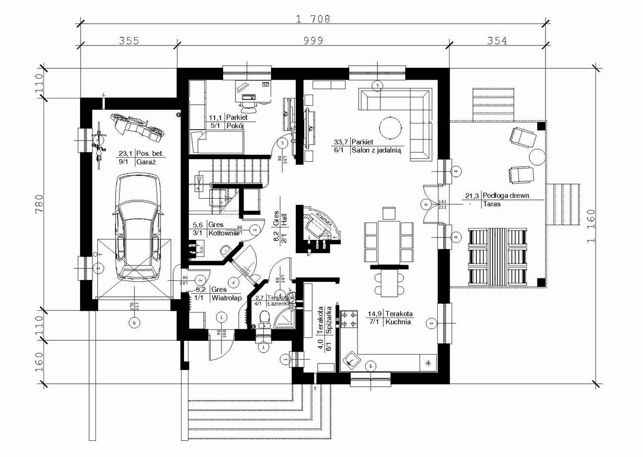
          Na poddaszu zaprojektowano 4 pokoje, centralną garderobę oraz dwie łazienki: dużą i małą.

Strych nad poddaszem (hmax=~1,6m) dostarcza kolejne metry kwadratowe powierzchni magazynowej - np. na akcesoria zimowe, kartony po RTV, itp.
         Tradycyjna konstrukcja domu decyduje o niższych kosztach budowy.
         W projekcie przewidziano
dodatkowy kanał grzewczy przy kominku, pozwalający na rozprowadzenie instalacji DGP (Dystrybucji Gorącego Powietrza) na poddasze.

Dom idealnie nadaje się do podpiwniczenia (w ramach adaptacji do działki), jak również na tereny zalewowe (wysoki cokół zabezpiecza parter)

...

U23 - Komfortowy i funkcjonalny dom z werandą... - wersja lustrzane odbicie
... zaprojektowany z myślą o działkach również z bocznym południem

Cena: 3000zł/kpl.

Komfortowy i funkcjonalny dom dla 4-5 osobowej rodziny. Parter z użytkowym poddaszem, z kuchnią od frontu, garażem w bryle budynku oraz zadaszonym tarasem. Możliwy wariant 150m2 - ze strychem zamiast pokoju nad garażem.

Powierzchnia użytkowa

168,7m2
/150,6

Pow. zabudowy

137,0m2

Pow. użytkowa z garażem

191,8m2
/173,7

Kubatura

689m3

Wysokość

9,0m

Kąt dachu

38 st.

Garaż 1-stanowisk.

23,1m2

DO WERSJI PODSTAWOWEJ:
ELEWACJA FRONTOWA:
ELEWACJA OGRODOWA:
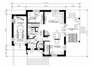
RZUT PARTERU:
ELEWACJA GARAŻOWA:
WARIANT KOLORU (v.U22):
RZUT PODDASZA:
WARIANT KOLORU (v.U22):
WARIANT KOLORU (v.U22):
ANIMACJA (wersja U22, garaż 2-stan.):
MINIMALNE WYMIARY DZIAŁKI:


Program użytkowy:



Program PARTERU:
- Wiatrołap z miejscem na szafę, komunikujący również dom z garażem;

- Hall z miejscem na szafę i bezpośrednim wejściem do każdego pomieszczenia na parterze
- Duży, jasny pokój dzienny z kominkiem i wyjściem na taras;
- Jadalnia dla  6/12 osób bezpośrednio przy kuchni;
- Kuchnia doświetlona dwoma oknami, z poręcznym stolikiem śniadaniowym;
- Spiżarka - bezpośrednio z kuchni, doświetlona;
- Zadaszony duży taras, z dostępem z najważniejszych pomieszczeń: kuchni, jadalni i salonu
- Dodatkowy pokój (sypialnia, gabinet lub pokój gościnny) o pow. ok. 11m2;
- W pełni funkcjonalna łazienka (z prysznicem);
- Duże pomieszczenie gospodarcze z miejscem na pralką pod schodami;
- Duży garaż. Jego powierzchnia bez problemu pomieści oprócz samochodu - rowery, kosiarkę, motocykl, narzędzia ogordowe, trochę kominkowego drewna itp.

Program PODDASZA:

- przestronny hall z mozliwością otwarcia przesuwną scianą na ogród;
- komfortowa sypialnia
rodziców z boczną garderobą;
- dwie
sypialnie dla dzieci;
- gabinet
do pracy, o pow. 10,5m2 dostępny z korytarza, który można otworzyć i pozostawić jako duży doświetlony hall
- duża łazienka z wanną i prysznicem;
- dodatkowe WC z prysznicem;
- duża garderoba z miejscem do prasowania, dostępna z korytarza;
- wejście na strych z korytarza włazem strychowym;
Wysokie ścianki kolankowe:

- w sypialni rodziców: 180cm

- w pozostałych pomieszczeniach: min.100-120cm

STRYCH:

- jako dodatkowa powierzchnia magazynowa, hmax=1,65m


Podstawowe dane techniczne:



- Powierzchnia zabudowy: 137,0m2
- Powierzchnia zabudowy z tarasem: 158,2m2
- Powierzchnia użytkowa:  168,7m2 - bez garażu
- Powierzchnia użytkowa z garażem:  191,8m2
- Powierzchnia garażu:  23,1m2

- ciepłe ściany zewnętrzne
: pustak ceramiczny 25cm  
 (Porotherm) + styropian 15 cm, U=0,22W/(m2xK) (!)

- elewacje: tynk cienkowarstwowy w różnych kolorach, elementy z płytek klinkierowych, itp.;
- strop: żelbetowy TERIVA
- dach: dwuspadowy, nachylenie dachu w stopniach: 38
- więźba drewniana, pokrycie dachu: dachówka (z  możliwością blachodachówki)
- kocioł C.O.: gazowy
- dodatkowo kominek z systemem Dystrybucji Gorącego Powietrza (turbinowy)
- ściany fundamentowe z bloczka betonowego + ławy żelbetowe
- Projekt z wszystkimi instalacjami: C.O., gaz., wod., kan.,       elektr.

...ponad PROGRAM:


- Klatka schodowa
nie ingeruje swą obecnością w spokój domowników. Umieszczona w hallu za ścianą salonu - umożliwia swobodną komunikację bez oddziaływania na użytkowników pokoju dziennego;

- otwarta przestrzeń
części dziennej parteru sięga od aneksu TV aż po kuchnię, czyli ok. 11metrów! Daje to wrażenie ogromnej przestrzeni - pomimo iż dom nie jest duży.

- na połączeniu salonu i kuchni zaprojektowaliśmy małą ściankę.
Od strony salonu - aranżacja ścianki należy do Inwestora, od strony kuchni - proponujemy podręczny, śniadaniowy stolik.

- W projekcie przewidziano
dodatkowy kanał grzewczy przy kominku, pozwalający na rozprowadzenie instalacji DGP (Dystrybucji Gorącego Powietrza) na poddasze. Pozwala to na ogrzanie domu kominkiem - bez konieczności budowy centralnego ogrzewania w pierwszych okresach użytkowania.


Wróć do spisu treści