Przejdź do treści

U33L 165,4m2

Nasz profil > KATEGORIE > DOMY PARTEROWE Z PODDASZEM
KOLEKCJE PROJEKTÓW:

U33 (L)
wersja lustrzana
(tu zobacz wersję podstawową)
cena: 3000zł

Jest to komfortowy, nowoczesny dom, z wieloma praktycznymi
rozwiązaniami, pełnobranżowy, z wszystkimi instalacjami.

Nieskomplikowana konstrukcja, wiele zakamarków gospodarczych (pralnia, spiżarka, garderoby, pom. gosp.-hobby), możliwość lokalizacji na wąskiej i długiej (głębokiej) działce - to tylko niektóre z jego zalet.

Zachęcamy przyjrzeć się dokładnie wydzielonej "części dla rodziców" - jest to naprawdę atrakcyjne rozwiązanie - wzorem odrębnego apartamentu pozwalającego na chwilę relaksu i spokoju w enklawie, której nie zakłócają bawiące się dzieci, czy przypadkowi goście.

Dom mieści się na działce o szerokości nawet poniżej 19m
(przy zastosowaniu luksferów zamiast okien w garażu - minimalna szerokość działki to 18,5m)

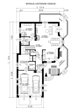
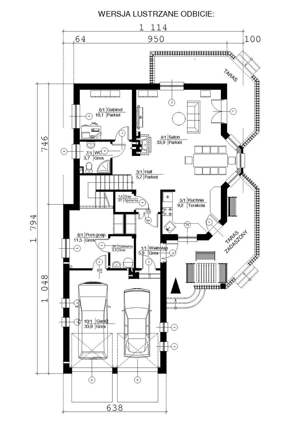
Program PARTERU:
1.Salon 34m2 (w połączeniu z hallem daje to 40m2!) z  kominkiem z Dystrybucją
 Gorącego Powietrza i tarasem z wyjściem z dowolnej strony
2.Jadalnia gotowa na 10 osób
3.Kuchnia ze spiżarką
, z oknem od frontu, wyposażona w poranny zadaszony "taras kawowy"
4.Gabinet + WC z prysznicem
5.Dwustanowiskowy garaż i duże, wygodne zaplecze pom. gospodarczych (hobby);

Program PODDASZA:
1.Wydzielony apartament rodziców: duża sypialnia, osobna łazienka i hall z wyjściem na zadaszony balkon
2.Dwie lub trzy sypialnie dla dzieci (trzy - w wariancie z łazienką w miejscu garderoby)
3.Łazienka z pralnią

Pow. użytkowa: 165m2 + 2 miejsca parkingowe w garażu (33,9m2)      

...  

RZUT PARTERU:
RZUT PODDASZA:

Powierzchnia użytkowa

165,4m2

Powierzchnia zabudowy

147,9m2

Pow. użytk. z gara¿em

199,3m2

Kubatura

757m3

Wysokość

8,9m

Kąt nachylenia dachu

40

Garaż dwustanowiskowy

33,9m2

ANIMACJA:

Podstawowe dane techniczne:

Nachylenie dachu w stopniach: 40
Pokrycie dachu: blachodachówka (możliwa również dachówka)
Ciepłe ściany:
bloczki z betonu komórkowego gr. 24cm + styropian 12cm
o współczynniku U=0,24 W/(m2xK)
Strop
TERIVA,  schody wewnętrzne - żelbetowe
Uwaga: dostępna wersja podstawowa oraz w  lustrzanym  odbiciu.

ZDJĘCIA Z REALIZACJI:
PRZYKŁADOWA LOKALIZACJA:

...



...

Wróć do spisu treści